设为首页
收藏本站
开启辅助访问
切换到窄版
登录
立即注册
首页
馨轩阁
图纸库
图片库
模型库
木结构之家
搜索
搜索
木工图集
木工知库
木工雕刻
木工家具
木屋图纸
凉亭图纸
花架图纸
景观图纸
木屋图库
凉亭图库
花架图库
景观图库
木屋模型
凉亭模型
花架模型
景观模型
农村自建房
木结构住宅
木结构庭建
研习木结构
本版
文章
帖子
木图网-木结构之家
»
木结构之家
›
木结构交流互动区
›
木结构建造
›
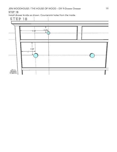
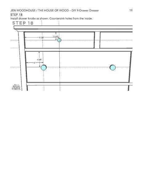
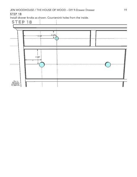
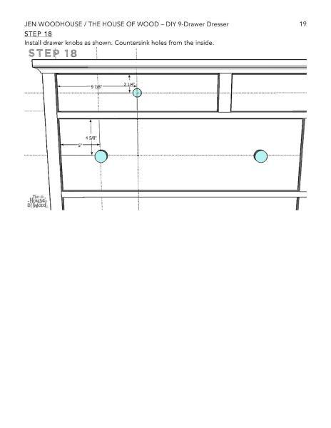
室内矮柜做法
1
2
/ 2 页
返回列表
发新帖
[景观木作]
室内矮柜做法
[复制链接]
admin
|
2025-3-2 14:05:47
|
显示全部楼层
回复
举报
1
2
/ 2 页
返回列表
发新帖
高级模式
B
Color
Image
Link
Quote
Code
Smilies
您需要登录后才可以回帖
登录
|
立即注册
本版积分规则
发表回复
回帖后跳转到最后一页
浏览过的版块
图片库
图纸库
模型库
回复楼主
返回列表
木结构剖析
木结构建造
木结构发现
图文推荐
宁海华山公园景区导向牌cad图纸
2024-09-29
衢州市鹿鸣公园2#景观盒cad图纸
2024-09-29
宁海华山公园公厕木挂板cad图纸
2024-09-29
衢州市鹿鸣公园木挂板cad图纸
2024-09-29
西梅溪湖滨湖梅D区树池cad图纸
2024-09-29
热门排行
1
户外防腐木花架欣赏[含部分公司工程案例]
2
中国徽派民居
3
中国民居之西递
4
上海世纪森林公园原木别墅组图
5
贵州遵义的袁氏古民居
6
中国民居之乌镇
7
河南省清明上河图标示牌
8
广东省惠州市惠州西湖旅游景区仿古亭